|
数控G指令编程代码,15分钟教你入门~数控加工中心编程技术,一直是数控机床的核心部分。怎样精确的写好程序指令,对于车床的运行和精确操作,有着极其重要的作用。它告诉机器如何执行操作,完成切割机械的目的。下面我们就来看看数控车削中常用的各种指令吧~ 1..快速点定位指令(G00) 这个指令可以使刀架以机床厂设定的最快速度按点位控制方式从刀架当前点快速移动至目标点,这个指令是不需要规定给进速度的~ G00指令格式: G00 X_Z_, 或G00 U_W_ 如下图编程: 起点坐标(120,90) 终点坐标(50,6) 由起点快读到终点的程序为:G00 X50,Z6 或 G00 U70 W8
2.直线插补指令G01 这个指令用于是刀架以给定的给进速度从当前点直线或是斜线移动至目标点,即可是刀架沿X轴方向或Z轴方向作直线运动,也可以两轴联动方式在X、Z轴内作任意斜率的直线运动。 指令格式: G01 X_Z_F_ 或 G01 U_W_F_ G01指令参数: X、Z:切削终点绝对坐标; U、W:切削终点相对起点的相对坐标; F:进给速度,如进给速度F值一再前段程序中给定且不需要改变,本段程序也可以不写出; 弱势某一轴没有进给,那么指令中可省略该轴指令。 【例】外圆柱切削编程 程序: G01 X60.0 Z-80.0 F0.4 或 G01 U0.0 W-80.0 F0.4 因起点终点X坐标未变,也可以是: G01 W80.0 F0.4 或 G01 Z-80.0 F0.4
3.圆弧插补指令(G02、G03) 这个指令用于刀架做圆弧运动以切出圆弧轮廓,G02为刀架沿顺时针方向作圆弧插补,G03则为沿逆时针方向的圆弧插补。 指令格式: G02 X_Z_R_F 或 G02 X_Z_l_K _F G03 X_Z_R_F 或 G02 X_Z_l_K _F 指令参数: X、Z:圆弧终点坐标 R:圆弧半径 I K F:进给速度 【例】顺时针圆弧插补 如图: 用(I 、K)指令: G02 X50.0 Z-10.0 120. K17. F0.4 或 G02 U30.0 W-10.0 120. K17. F0.4 用(R)指令: G02 X50.0 Z-10.0 R27.0 F0.4 或 G02 U30.0 W-10.0 R27.0 F0.4
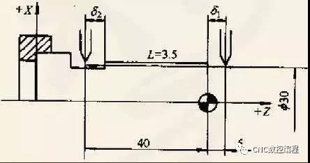
4.螺纹切削指令(G32) 这个指令用于切削圆柱螺纹,圆锥螺纹和端面螺纹。 指令格式: G32 X_Z_F_ 其中F值为螺纹的螺距 【例】圆柱螺纹切削 如下图: 螺纹切削起点&1:一般取螺距整数倍 螺纹退刀量&2:一~两倍螺距 G32 Z-40.0 F2.5 或 G32 W-45 F2.5
5.暂停指令(G04) 这个指令可以使道具作短时间(N秒钟)的停顿,以进行进给光整加工,主要用于刀削环槽、不通孔和自动加工螺纹等场合,如下图所示。 指令格式: G04 P_ 其中P后跟停留的时间,单位为秒。
|
|
|




