佛山市荣星数控设备制造有限公司

联系人欧先生:

18025860999

0757-29823610

微信咨询二维码

25年行业经验

国家高新技术企业

32年行业经验

专注品质保证  完整的售后服务体系

首页 >> 公司新闻 >>应用领域 >> 数控G指令编程代码,15分钟教你入门~
详细内容

数控G指令编程代码,15分钟教你入门~

数控加工中心编程技术,一直是数控机床的核心部分。怎样精确的写好程序指令,对于车床的运行和精确操作,有着极其重要的作用。它告诉机器如何执行操作,完成切割机械的目的。下面我们就来看看数控车削中常用的各种指令吧~

1..快速点定位指令(G00)

这个指令可以使刀架以机床厂设定的最快速度按点位控制方式从刀架当前点快速移动至目标点,这个指令是不需要规定给进速度的~

G00指令格式:

G00 X_Z_, 或G00 U_W_

如下图编程:

起点坐标(120,90)

终点坐标(50,6)

由起点快读到终点的程序为:G00 X50,Z6 或

G00 U70 W8


微信图片_20180625174442.jpg


2.直线插补指令G01

这个指令用于是刀架以给定的给进速度从当前点直线或是斜线移动至目标点,即可是刀架沿X轴方向或Z轴方向作直线运动,也可以两轴联动方式在X、Z轴内作任意斜率的直线运动。

指令格式:

G01 X_Z_F_ 或 G01 U_W_F_

G01指令参数:

X、Z:切削终点绝对坐标;

U、W:切削终点相对起点的相对坐标;

F:进给速度,如进给速度F值一再前段程序中给定且不需要改变,本段程序也可以不写出;

弱势某一轴没有进给,那么指令中可省略该轴指令。

【例】外圆柱切削编程

程序:

G01 X60.0 Z-80.0 F0.4 或 G01 U0.0 W-80.0 F0.4

因起点终点X坐标未变,也可以是:

G01 W80.0 F0.4 或 G01 Z-80.0 F0.4


微信图片_20180625174451.jpg


3.圆弧插补指令(G02、G03)

这个指令用于刀架做圆弧运动以切出圆弧轮廓,G02为刀架沿顺时针方向作圆弧插补,G03则为沿逆时针方向的圆弧插补。

指令格式:

G02 X_Z_R_F 或 G02 X_Z_l_K _F

G03 X_Z_R_F 或 G02 X_Z_l_K _F

指令参数:

X、Z:圆弧终点坐标

R:圆弧半径

I

K

F:进给速度

【例】顺时针圆弧插补

如图:

用(I 、K)指令:

G02 X50.0 Z-10.0 120. K17. F0.4 或

G02 U30.0 W-10.0 120. K17. F0.4

用(R)指令:

G02 X50.0 Z-10.0 R27.0 F0.4 或

G02 U30.0 W-10.0 R27.0 F0.4


微信图片_20180625174454.jpg


4.螺纹切削指令(G32)

这个指令用于切削圆柱螺纹,圆锥螺纹和端面螺纹。

指令格式:

G32 X_Z_F_

其中F值为螺纹的螺距

【例】圆柱螺纹切削

如下图:

螺纹切削起点&1:一般取螺距整数倍

螺纹退刀量&2:一~两倍螺距

G32 Z-40.0 F2.5 或 G32 W-45 F2.5


微信图片_20180625174457.jpg

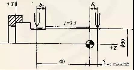
5.暂停指令(G04)

这个指令可以使道具作短时间(N秒钟)的停顿,以进行进给光整加工,主要用于刀削环槽、不通孔和自动加工螺纹等场合,如下图所示。

指令格式:

G04 P_

其中P后跟停留的时间,单位为秒。

微信图片_20180625174459.jpg


新闻中心
更多
  • 分条机是如何工作的

    分条机是如何工作的

      1.恒张力管制道理  关于收放卷过程中恒张力管制的本质是需求晓得负载在运转傍边卷径的转变,由于卷径转变,造成为了保持负载的运转,分体机需求电机的输送转矩要跟

  • 如何有效的提高分条机的利用率

    如何有效的提高分条机的利用率

      1、步距的资料利用率:若为接连模则涉及到圆盘在卷(带)料上的拍样问题,在料带上两个圆盘之间存在一定的搭边值,一个冲压步距即两个圆盘的中心距,以两个--半圆和

  • 如何选择一款适合自己的分条机刀片

    如何选择一款适合自己的分条机刀片

      现代机床的加工速度的分别,耐磨性和精度较高的刀具平常实用于高速分切设备,而低速机床则不需求这一类刀具,应用高效刀具是无法提现车7高效的生产量;所以,公司在选

  • 分条机纵剪机套内锯料不一致问题

    分条机纵剪机套内锯料不一致问题

      分条机纵剪机套内锯料纷歧致问题  出现这种情况是一种正常的情况,首要的原因又以下几点  1张力设备的张力受力点不均匀,张力巨细是松紧的要害,张力假设大的话板

  • 纵剪分条机的高速控制系统创新研发

    纵剪分条机的高速控制系统创新研发

    纵剪分条机在金属卷带加工领域应用广泛。卷带要经过开卷、分条、收卷等过程,传统的(最大加工宽度1600mm,加工厚度0.3-2.5mm)分条机由于生产线的排布、机

  • 飞剪机用途及技术说明

    飞剪机用途及技术说明

      飞剪机用途及技术说明。一、设备用处  1.轧件进入精轧机前因为轧件头、尾存在安排缺点或钢温过低,飞剪机切去头,尾确保轧件质量。  2.当轧件进入精轧机组发作

  • 分条机的工作原理

    分条机的工作原理

      1.恒张力控制原理  对于收放卷过程中恒张力控制的实质是需要知道负载在运行当中卷径的变化,由于卷径变化,导致为了维持负载的运行,分体机需要电机的输出转矩要跟

  • 数控机床加工铝料时,怎么才能让加工尺寸更

    数控机床加工铝料时,怎么才能让加工尺寸更

    导读:在机床加工中,总会遇到这样或那样的问题,最近有机床网友在后台向小编留言,询问在用数控机床加工铝料时,怎么才能让加工尺寸更稳定。感谢这位网友的留言,小编在整

  • 高速数控机床加工实拍,切削精准

    高速数控机床加工实拍,切削精准

    数控机床是数字控制机床(Computer numerical control machine tools)的简称,是一种装有程序控制系统的自动化机床。该控制系统

  • 数控机床工装夹具的选择和使用常识

    数控机床工装夹具的选择和使用常识

    目前,机械加工按生产批量可分为两大类:一类是单件、多品种、小批量(简称小批量生产);另一类是少品种、大批量(简称大批量生产)。其中前者大约占到机械加工总产值的7

技术支持: 佛山网站建设 | 管理登录
seo seo