|
分条生产线RXFT-0.3-2.5-1500
收藏
产品编号 分条生产线RXFT-0.3-2.5-1500
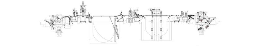
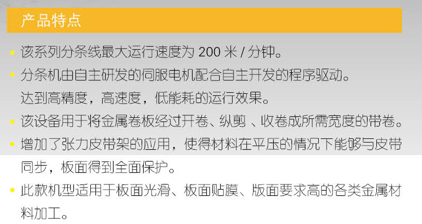
分条机,用于将金属卷板经过开卷、纵剪、收卷成所需宽度的带卷。适用于进行金属带料的纵向剪切工作,并将分切后的窄条重新卷绕成卷。 优点:操作方便,切割质量高、材料利用率高、切割速度无级调速等特点。 |
|
|



